Property Details - Reference 186500

Melsonby Way
Bishop Auckland
DL14 8FR
Cost summary

Description

Tenancy type:
Social Housing.
Landlord:
believe housing.
Ends midnight:
26/02/2026.
Added:
21/02/2026.
3 Bedrooms
Pets allowed
Off Road parking
Garden
Icon Descriptions
3 Bedrooms
Pets allowed
Off Road parking
Garden
Front view

Property details

Area:
Bishop Auckland Town Centre.
Size:
3 Bed.
Property Reference:
186500.
Below is a map showing this property's location. Skip past the map
This property cannot be displayed on a map

Letting information

Rent:
£147.69.
Total Cost:
£147.69.
Council tax band:
To be confirmed.
Payment Cycle:
Weekly (52 weeks).

Key features

Pets Allowed:
Yes.
Bathroom facilities:
Bathroom with shower and W/C.
Garden type:
Own garden.
Heating type:
Gas Central Heating.
Parking facilities:
Drive.
Water Meter:
Not known.
Energy Performance Rating:
Not known.
Adaptations:
Downstairs Toilet.
You will not be offered adapted properties if you have not been assessed by us as needing the adaptation.

Further description

Marketing information:
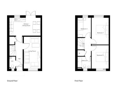
Believe Housing are delighted to offer for rent, a three bedroom semi detached new build home on the popular development of Bishop Park. This three-bedroom homes, feature a large kitchen/dining area, spacious living room, downstairs WC, moving onto the first floor are three bedrooms, along with a family bathroom, External is a private enclosed garden to the rear. Moving to the front of the house there is a drive to the front for one car. Rent is liable from the day the tenancy starts and we will ask for up to two weeks rent to be paid at the time you collect your keys. All offers of accommodation are subject to an affordability check and tenancy report in line with the New Build Lettings Policy. The new build lettings policy can be found on the Durham Key Options Website. If you have advised us that you require, or you have been assessed as needing any adaptations, or if you have the need for ground floor accommodation and have been awarded priority on these grounds, we will not consider any bid you place on this property. Photos are for illustrative purposes only. Floor plans should be used as a guide only. Please note we will only contact successful applicants. If you do not hear from us following your bid, you can assume you were not successful at this time. Maximum of two pets allowed. For further information please contact the Lettings Team on 0300 13 11 999 or lettings@believehousing.co.uk. .

Media

Schools & Local area

No local area details could be found for this location.

Map & Street View

Below is a map showing this property's location. You can find more information about this property in the 'Overview' tab. Skip past the map
This property cannot be displayed on a map

Map references should be used as a guide only and do not indicate the precise location of the property
Contains Ordnance Survey data © Crown copyright and database right 2015.